NAVŠTIVTE NÁŠ VZOROVÝ DŮM V SHOWROOMU
NAVŠTIVTE NÁŠ VZOROVÝ DŮM V SHOWROOMU

Retail Park Ostrava - Varenská 3309

Těšíme se na vás!

Bydlení,
vyladěné přírodou
  • Facebook
  • Instagram
  • O nás
  • Naše domy
  • Blog
  • Reference
0   Porovnávání 0   Oblíbené
  • O nás
  • Naše domy
  • Blog
  • Reference
  • Proč si vybrat nás?
  • Dům z dronu
  • Tiny House
  • Kontakty

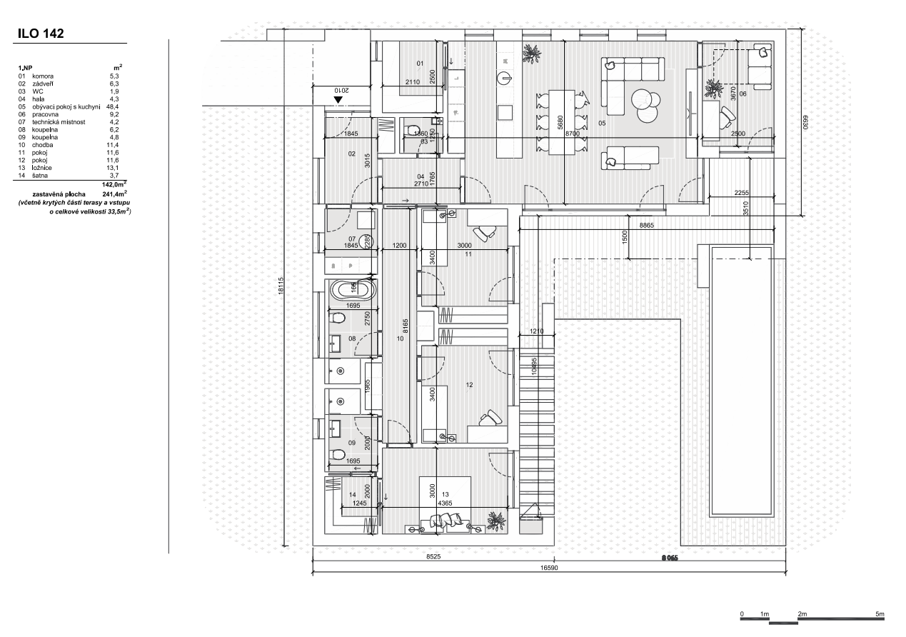
Zděný dům ILO 142

  • Fotogalerie
  • Půdorys
  • Interiér
  • Rozsah dodávky
Přidat do seznamu přání Přidat do porovnávání
Mám zájem o ILO 142
Zděný dům ILO 142

Zděný dům ILO 142 Kód: ILO 142

  • Domů
  • Zděné domy
  • Zděný dům ILO 142
Kontaktujte nás

Cena provedení na klíč

6 899 000 Kč s DPH

součástí ceny je základová deska + tepelné čerpadlo

Cena provedení hrubé stavby

4 067 600 Kč s DPH

součástí ceny je základová deska

*Obě varianty jsou bez kuchyňské linky

Mám zájem o ILO 142

luxusní bydlení ve spojení se zahradou

Barevnostní varianty:

Dům s půdorysem ve tvaru písmene L a velkorysým pojetím se snaží nabídnout maximální komfort, soukromí a propojení se zahradou. Soukromé křídlo nabízí všechny ložnice s přímým vstupem do zahrady. Společenská část se otevírá do exteriéru ve všech svých částech. Propojení interiéru s okolím je řešeno skrz různě velké a částečně kryté prostory, vzniká tak plynulý přechod mezi domem a zahradou. Materiálové řešení kombinuje klasickou a strukturovanou omítku, zapuštěné části domu jsou obloženy dřevěným obkladem nebo silikonovou omítkou v dekoru dřeva. Prostor teras je dále modelován volně stojícími kamennými zdmi, které zároveň plní nosnou funkci.

Užitná plocha

142 m2

Typ konstrukce

zděná stavba

Zastavěná plocha

241.4 m2

Rozměry domu

18,115 x 16,59 m

Typ domu

Bungalov

Dispozice

5+kk

Fotogalerie

Zděný dům ILO 142
Zděný dům ILO 142
Zděný dům ILO 142
Zděný dům ILO 142
Zděný dům ILO 142
+7
Zděný dům ILO 142
Zděný dům ILO 142
Zděný dům ILO 142
Zděný dům ILO 142
Zděný dům ILO 142
Zděný dům ILO 142
Zděný dům ILO 142
Zděný dům ILO 142
Zděný dům ILO 142
Zděný dům ILO 142
Zděný dům ILO 142
Zděný dům ILO 142

Interiér

Zděný dům ILO 142
Zděný dům ILO 142
Zděný dům ILO 142

01 Dřevostavba na klíč

Pro ty, kteří se nechtějí o nic starat a mít vše zajištěno od jednoho dodavatele.

02 Dřevostavba hrubá stavba

Pro ty, kteří si vnitřní design domu chtějí dokončit dle svých představ.

Rozsah dodávky

01 Zděná stavba na klíč

Pro ty, kteří se nechtějí o nic starat a mít vše zajištěno od jednoho dodavatele.

02 Zděná stavba - hrubá stavba

Pro ty, kteří si vnitřní design domu chtějí dokončit dle svých představ.

Kompletní konstrukční systém ILO

Základová deska

Krovy, vazníky nebo nosníky

Kompletní střešní krytina vč. doplňků a odvodnění střechy

Tepelné čerpadlo

Fasádní systém

Vnitřní rozvody vody a odpadů

Rozvody podlahového topení

Vchodové dveře + okna + garážová vrata

Střešní okna ( u vybraných domů )

Rozvody elektroinstalace

Kompletní příprava všech povrchů pod malby

Kompletní výmalba

Kompletace elektroinstalace - rozvaděč

Kompletace elektroinstalace - zásuvky a vypínače

Kompletní skladba SDK podhledů

Kompletní skladba podlah bez nášlapných vrstev

Obklady, dlažby, sanita

Podlahové krytiny

Interiérové dveře

Kuchyňská linka

Máte zájem o tento dům?

Vyplňte prosím krátký formulář a my se Vám co nejdříve ozveme.

Děkujeme

Mohlo by se Vám líbit

Přidat do seznamu přání Přidat do porovnávání
Dřevostavba ILO 144P Dřevostavba ILO 144P

Dřevostavba ILO 144P

Dispozice

5+kk

Užitná plocha

144 m2

Typ konstrukce

dřevostavba

Cena provedení na klíč

6 569 000 Kč s DPH

Cena hrubé stavby

3 507 600 Kč s DPH

Přidat do seznamu přání Přidat do porovnávání
Dřevostavba ILO 127 Dřevostavba ILO 127

Dřevostavba ILO 127

Dispozice

5+kk

Užitná plocha

127 m2

Typ konstrukce

dřevostavba

Cena provedení na klíč

6 099 000 Kč s DPH

Cena hrubé stavby

3 158 300 Kč s DPH

Bydlení,
vyladěné přírodou

Sledujte nás

  • Facebook
  • Instagram

Kde nás najdete?

ILO DOMY s.r.o.

Varenská 3309

Moravská Ostrava 702 00

Spojte se s námi

(+420) 773 070 317

info@ilodomy.cz

Odkazy

  • KUCHYNĚ NEST
  • O nás
  • Naše domy
  • Blog
  • Reference
  • Proč si vybrat nás?
  • Dům z dronu
  • Tiny House
  • Kontakty
ARSY line - tvorba webových stránek a eshopů

Oblíbené produkty

Přihlaste se

Pro přidání produktu do seznamu oblíbených je nutné se přihlásit nebo registrovat do e-shopu.

Registrovat se Přihlásit se

Poslat odkaz známému

Odesláním formuláře souhlasíte se zásadami ochrany osobních údajů.

Dotaz k produktu - Zděný dům ILO 142

Odesláním formuláře souhlasíte se zásadami ochrany osobních údajů.

Hledám relevantní výsledky...

Upozornění