NAVŠTIVTE NÁŠ VZOROVÝ DŮM V SHOWROOMU
NAVŠTIVTE NÁŠ VZOROVÝ DŮM V SHOWROOMU

Retail Park Ostrava - Varenská 3309

Těšíme se na vás!

Bydlení,
vyladěné přírodou
  • Facebook
  • Instagram
  • O nás
  • Naše domy
  • Blog
  • Reference
0   Porovnávání 0   Oblíbené
  • O nás
  • Naše domy
  • Blog
  • Reference
  • Proč si vybrat nás?
  • Dům z dronu
  • Tiny House
  • Kontakty

Dřevostavba ILO 144P

  • Fotogalerie
  • Půdorys
  • Interiér
  • Rozsah dodávky
Přidat do seznamu přání Přidat do porovnávání
Mám zájem o ILO 144P
Dřevostavba ILO 144P

Dřevostavba ILO 144P Kód: ILO 144P

  • Domů
  • Dřevostavby
  • Dřevostavba ILO 144P
Kontaktujte nás

Cena provedení na klíč

6 569 000 Kč s DPH

součástí ceny je základová deska + tepelné čerpadlo

Cena provedení hrubé stavby

3 507 600 Kč s DPH

součástí ceny je základová deska

*Obě varianty jsou bez kuchyňské linky

Mám zájem o ILO 144P

klasický formát s prostorovými překvapeními

Barevnostní varianty:

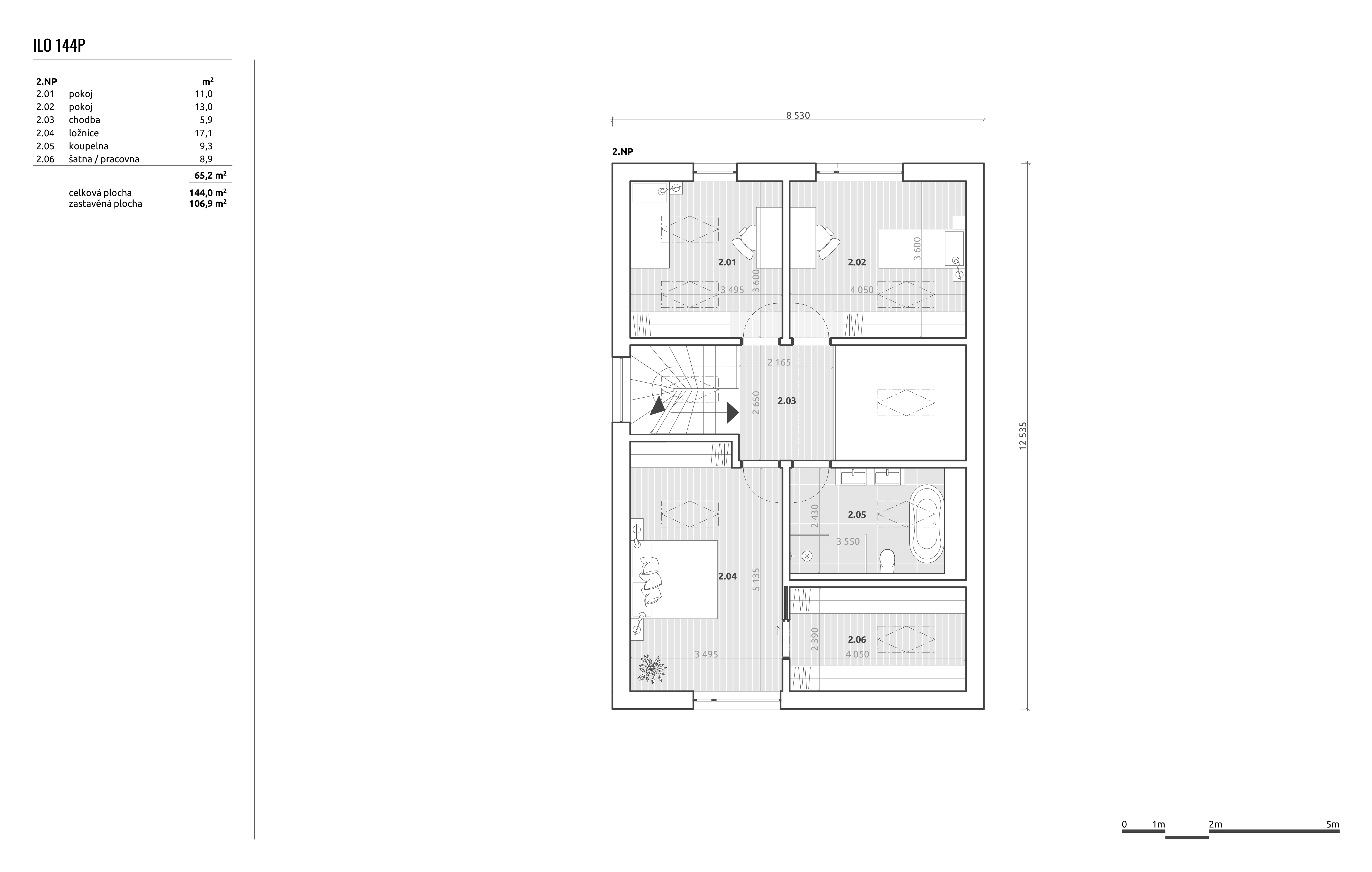
Dřevostavba spadá do kategorie větších a prostorově velkorysejších objektů. Zároveň je připraven pro posazení na netypicky orientované pozemky. Spodní podlaží je otevřeno do patra v místě jídelní části, kde vzniká efektní a lákavý prostor. Vstup je zasunutý pro maximální komfort. V rohu dispozice je umístěn pokoj, který může sloužit jako samostatný pokoj pro hosty se zázemím. Místnost je otevřena i do zahrady. V patře navazují pokoje na centrální chodbu, která je díky optickému propojení s přízemím působivým místem a ne jen obyčejným propojovacím prostorem. Ložnice v patře je doplněna pokojem, který může sloužit jako šatna nebo pracovna. Exteriér domu kombinuje dřevěný obklad nebo silikonovou omítku v dekoru dřeva lemující přízemí a klasickou omítku. Tato barevnost navazuje na střešní krytinu a vytváří osobitý vzhled dřevostavby. 

Užitná plocha

144 m2

Typ konstrukce

dřevostavba

Zastavěná plocha

107 m2

Rozměry domu

8,5 x 12,5 m

Typ domu

Patrový dům

Dispozice

5+kk

Fotogalerie

Dřevostavba ILO 144P
Dřevostavba ILO 144P
Dřevostavba ILO 144P
Dřevostavba ILO 144P
Dřevostavba ILO 144P
+5
Dřevostavba ILO 144P
Dřevostavba ILO 144P
Dřevostavba ILO 144P
Dřevostavba ILO 144P
Dřevostavba ILO 144P
Dřevostavba ILO 144P
Dřevostavba ILO 144P
Dřevostavba ILO 144P
Dřevostavba ILO 144P

1. NP

Dřevostavba ILO 144P

2. NP

Dřevostavba ILO 144P

Interiér

Dřevostavba ILO 144P
Dřevostavba ILO 144P
Dřevostavba ILO 144P

01 Dřevostavba na klíč

Pro ty, kteří se nechtějí o nic starat a mít vše zajištěno od jednoho dodavatele.

02 Dřevostavba hrubá stavba

Pro ty, kteří si vnitřní design domu chtějí dokončit dle svých představ.

Rozsah dodávky

01 Dřevostavba na klíč

Pro ty, kteří se nechtějí o nic starat a mít vše zajištěno od jednoho dodavatele.

02 Dřevostavba hrubá stavba

Pro ty, kteří si vnitřní design domu chtějí dokončit dle svých představ.

Kompletní konstrukční systém ILO

Základová deska

Krovy, vazníky nebo nosníky

Kompletní střešní krytina vč. doplňků a odvodnění střechy

Tepelné čerpadlo

Fasádní systém

Vnitřní rozvody vody a odpadů

Rozvody podlahového topení

Vchodové dveře + okna + garážová vrata

Střešní okna ( u vybraných domů )

Rozvody elektroinstalace

Kompletní příprava všech povrchů pod malby

Kompletní výmalba

Kompletace elektroinstalace - rozvaděč

Kompletace elektroinstalace - zásuvky a vypínače

Kompletní skladba SDK podhledů

Kompletní skladba podlah bez nášlapných vrstev

Obklady, dlažby, sanita

Podlahové krytiny

Interiérové dveře

Kuchyňská linka

Máte zájem o tento dům?

Vyplňte prosím krátký formulář a my se Vám co nejdříve ozveme.

Děkujeme

Mohlo by se Vám líbit

Přidat do seznamu přání Přidat do porovnávání
Dřevostavba ILO 110P Dřevostavba ILO 110P

Dřevostavba ILO 110P

Dispozice

4+kk

Užitná plocha

110 m2

Typ konstrukce

dřevostavba

Cena provedení na klíč

4 990 000 Kč s DPH

Cena hrubé stavby

2 809 000 Kč s DPH

Přidat do seznamu přání Přidat do porovnávání
Dřevostavba ILO 155P Dřevostavba ILO 155P

Dřevostavba ILO 155P

Dispozice

5+kk

Užitná plocha

155 m2

Typ konstrukce

dřevostavba

Cena provedení na klíč

6 949 000 Kč s DPH

Cena hrubé stavby

3 799 500 Kč s DPH

Přidat do seznamu přání Přidat do porovnávání
Dřevostavba ILO 142 Dřevostavba ILO 142

Dřevostavba ILO 142

Dispozice

5+kk

Užitná plocha

142 m2

Typ konstrukce

dřevostavba

Cena provedení na klíč

6 449 000 Kč s DPH

Cena hrubé stavby

3 401 800 Kč s DPH

Bydlení,
vyladěné přírodou

Sledujte nás

  • Facebook
  • Instagram

Kde nás najdete?

ILO DOMY s.r.o.

Varenská 3309

Moravská Ostrava 702 00

Spojte se s námi

(+420) 773 070 317

info@ilodomy.cz

Odkazy

  • KUCHYNĚ NEST
  • O nás
  • Naše domy
  • Blog
  • Reference
  • Proč si vybrat nás?
  • Dům z dronu
  • Tiny House
  • Kontakty
ARSY line - tvorba webových stránek a eshopů

Oblíbené produkty

Přihlaste se

Pro přidání produktu do seznamu oblíbených je nutné se přihlásit nebo registrovat do e-shopu.

Registrovat se Přihlásit se

Poslat odkaz známému

Odesláním formuláře souhlasíte se zásadami ochrany osobních údajů.

Dotaz k produktu - Dřevostavba ILO 144P

Odesláním formuláře souhlasíte se zásadami ochrany osobních údajů.

Hledám relevantní výsledky...

Upozornění