NAVŠTIVTE NÁŠ VZOROVÝ DŮM V SHOWROOMU
NAVŠTIVTE NÁŠ VZOROVÝ DŮM V SHOWROOMU

Retail Park Ostrava - Varenská 3309

Těšíme se na vás!

Bydlení,
vyladěné přírodou
  • Facebook
  • Instagram
  • O nás
  • Naše domy
  • Blog
  • Reference
0   Porovnávání 0   Oblíbené
  • O nás
  • Naše domy
  • Blog
  • Reference
  • Proč si vybrat nás?
  • Dům z dronu
  • Tiny House
  • Kontakty

Zděný dům ILO 110P

  • Fotogalerie
  • Půdorys
  • Interiér
  • Rozsah dodávky
Přidat do seznamu přání Přidat do porovnávání
Mám zájem o ILO 110P
Zděný dům ILO 110P

Zděný dům ILO 110P Kód: ILO 110P

  • Domů
  • Zděné domy
  • Zděný dům ILO 110P
Kontaktujte nás

Cena provedení na klíč

5 349 000 Kč s DPH

součástí ceny je základová deska + tepelné čerpadlo

Cena provedení hrubé stavby

3 262 000 Kč s DPH

součástí ceny je základová deska

*Obě varianty jsou bez kuchyňské linky

Mám zájem o ILO 110P

maximální účelnost na minimálním pozemku

Barevnostní varianty:

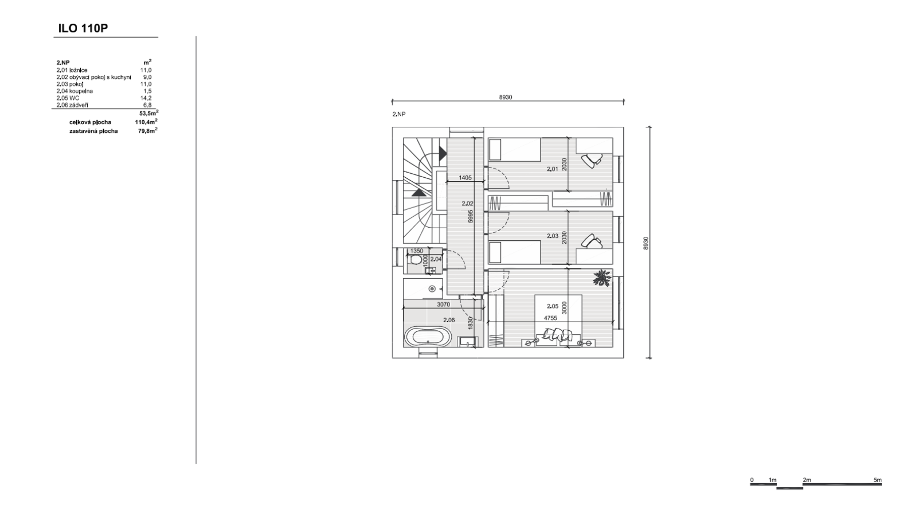
Návrh rozvíjí řešení domu ILO 110P, zmenšuje jeho dispozici a v rámci čtvercového půdorysu nabízí plnohodnotné bydlení na minimální ploše s výrazně limitovanými investičními náklady. Obslužná část je oddělena schodištěm a do zahrady se otevírají všechny obytné místnosti. Ty jsou poměrně úsporně řešeny. Fasáda směrem do zahrady je bohatě prosklena pro maximální propojení s přírodou, ostatní fasády naopak prosklením šetří. Výjimkou je okno prosvětlující schodišťový prostor, které napomáhá vzdušnosti tohoto místa. Exteriér domu používá tradiční materiál v podobě běžné omítky.

Užitná plocha

110 m2

Typ konstrukce

zděná stavba

Zastavěná plocha

79.8 m2

Rozměry domu

8,93 x 8,93 m

Typ domu

Patrový dům

Dispozice

4+kk

Fotogalerie

Zděný dům ILO 110P
Zděný dům ILO 110P
Zděný dům ILO 110P
Zděný dům ILO 110P
Zděný dům ILO 110P
+5
Zděný dům ILO 110P
Zděný dům ILO 110P
Zděný dům ILO 110P
Zděný dům ILO 110P
Zděný dům ILO 110P
Zděný dům ILO 110P
Zděný dům ILO 110P
Zděný dům ILO 110P
Zděný dům ILO 110P

1. NP

Zděný dům ILO 110P

2. NP

Zděný dům ILO 110P

Interiér

Zděný dům ILO 110P
Zděný dům ILO 110P
Zděný dům ILO 110P

01 Dřevostavba na klíč

Pro ty, kteří se nechtějí o nic starat a mít vše zajištěno od jednoho dodavatele.

02 Dřevostavba hrubá stavba

Pro ty, kteří si vnitřní design domu chtějí dokončit dle svých představ.

Rozsah dodávky

01 Zděná stavba na klíč

Pro ty, kteří se nechtějí o nic starat a mít vše zajištěno od jednoho dodavatele.

02 Zděná stavba - hrubá stavba

Pro ty, kteří si vnitřní design domu chtějí dokončit dle svých představ.

Kompletní konstrukční systém ILO

Základová deska

Krovy, vazníky nebo nosníky

Kompletní střešní krytina vč. doplňků a odvodnění střechy

Tepelné čerpadlo

Fasádní systém

Vnitřní rozvody vody a odpadů

Rozvody podlahového topení

Vchodové dveře + okna + garážová vrata

Střešní okna ( u vybraných domů )

Rozvody elektroinstalace

Kompletní příprava všech povrchů pod malby

Kompletní výmalba

Kompletace elektroinstalace - rozvaděč

Kompletace elektroinstalace - zásuvky a vypínače

Kompletní skladba SDK podhledů

Kompletní skladba podlah bez nášlapných vrstev

Obklady, dlažby, sanita

Podlahové krytiny

Interiérové dveře

Kuchyňská linka

Máte zájem o tento dům?

Vyplňte prosím krátký formulář a my se Vám co nejdříve ozveme.

Děkujeme

Mohlo by se Vám líbit

Přidat do seznamu přání Přidat do porovnávání
Dřevostavba ILO 144P Dřevostavba ILO 144P

Dřevostavba ILO 144P

Dispozice

5+kk

Užitná plocha

144 m2

Typ konstrukce

dřevostavba

Cena provedení na klíč

6 569 000 Kč s DPH

Cena hrubé stavby

3 507 600 Kč s DPH

Přidat do seznamu přání Přidat do porovnávání
Dřevostavba ILO 155P Dřevostavba ILO 155P

Dřevostavba ILO 155P

Dispozice

5+kk

Užitná plocha

155 m2

Typ konstrukce

dřevostavba

Cena provedení na klíč

6 949 000 Kč s DPH

Cena hrubé stavby

3 799 500 Kč s DPH

Bydlení,
vyladěné přírodou

Sledujte nás

  • Facebook
  • Instagram

Kde nás najdete?

ILO DOMY s.r.o.

Varenská 3309

Moravská Ostrava 702 00

Spojte se s námi

(+420) 773 070 317

info@ilodomy.cz

Odkazy

  • KUCHYNĚ NEST
  • O nás
  • Naše domy
  • Blog
  • Reference
  • Proč si vybrat nás?
  • Dům z dronu
  • Tiny House
  • Kontakty
ARSY line - tvorba webových stránek a eshopů

Oblíbené produkty

Přihlaste se

Pro přidání produktu do seznamu oblíbených je nutné se přihlásit nebo registrovat do e-shopu.

Registrovat se Přihlásit se

Poslat odkaz známému

Odesláním formuláře souhlasíte se zásadami ochrany osobních údajů.

Dotaz k produktu - Zděný dům ILO 110P

Odesláním formuláře souhlasíte se zásadami ochrany osobních údajů.

Hledám relevantní výsledky...

Upozornění