NAVŠTIVTE NÁŠ VZOROVÝ DŮM V SHOWROOMU
NAVŠTIVTE NÁŠ VZOROVÝ DŮM V SHOWROOMU

Retail Park Ostrava - Varenská 3309

Těšíme se na vás!

Bydlení,
vyladěné přírodou
  • Facebook
  • Instagram
  • O nás
  • Naše domy
  • Blog
  • Reference
0   Porovnávání 0   Oblíbené
  • O nás
  • Naše domy
  • Blog
  • Reference
  • Proč si vybrat nás?
  • Dům z dronu
  • Tiny House
  • Kontakty

Zděný dům ILO 101

  • Fotogalerie
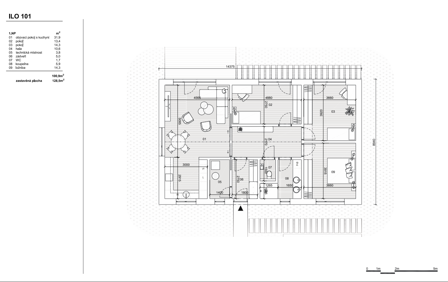
  • Půdorys
  • Interiér
  • Rozsah dodávky
Přidat do seznamu přání Přidat do porovnávání
Mám zájem o ILO 101
Zděný dům ILO 101

Zděný dům ILO 101 Kód: ILO 101

  • Domů
  • Zděné domy
  • Zděný dům ILO 101
Kontaktujte nás

Cena provedení na klíč

5 029 000 Kč s DPH

součástí ceny je základová deska + tepelné čerpadlo

Cena provedení hrubé stavby

3 082 300 Kč s DPH

součástí ceny je základová deska

*Obě varianty jsou bez kuchyňské linky

Mám zájem o ILO 101

Barevnostní varianty:

Dům se sedlovou střechou v moderním podání

Tradiční dům se sedlovou střechou nabízí dispozici orientovanou okolo středové haly. Ta se může stát plnohodnotnější součástí interiéru a minimalizovat méně prosvětlené části interiéru. Příčný obytný prostor je členěn na společenskou část a mírně oddělené kuchyňské zákoutí. Velkorysost prostoru dále rozvíjí otevření místností směrem do krovu, které vytváří vzdušnější a působivější prostor. Exteriér domu kombinuje dřevěný obklad nebo silikonovou omítku v dekoru dřeva a běžnou omítku. Střešní krytina svou barevností opticky splývá s horní částí střechy a vzniká tak osobitý vzhled.

Užitná plocha

101 m2

Typ konstrukce

zděná stavba

Zastavěná plocha

128.5 m2

Rozměry domu

14,35 x 8,94 m

Typ domu

Bungalov

Dispozice

4+kk

Fotogalerie

Zděný dům ILO 101
Zděný dům ILO 101
Zděný dům ILO 101
Zděný dům ILO 101
Zděný dům ILO 101
+7
Zděný dům ILO 101
Zděný dům ILO 101
Zděný dům ILO 101
Zděný dům ILO 101
Zděný dům ILO 101
Zděný dům ILO 101
Zděný dům ILO 101
Zděný dům ILO 101
Zděný dům ILO 101
Zděný dům ILO 101
Zděný dům ILO 101
Zděný dům ILO 101

Interiér

Zděný dům ILO 101
Zděný dům ILO 101
Zděný dům ILO 101

01 Dřevostavba na klíč

Pro ty, kteří se nechtějí o nic starat a mít vše zajištěno od jednoho dodavatele.

02 Dřevostavba hrubá stavba

Pro ty, kteří si vnitřní design domu chtějí dokončit dle svých představ.

Rozsah dodávky

01 Zděná stavba na klíč

Pro ty, kteří se nechtějí o nic starat a mít vše zajištěno od jednoho dodavatele.

02 Zděná stavba - hrubá stavba

Pro ty, kteří si vnitřní design domu chtějí dokončit dle svých představ.

Kompletní konstrukční systém ILO

Základová deska

Krovy, vazníky nebo nosníky

Kompletní střešní krytina vč. doplňků a odvodnění střechy

Tepelné čerpadlo

Fasádní systém

Vnitřní rozvody vody a odpadů

Rozvody podlahového topení

Vchodové dveře + okna + garážová vrata

Střešní okna ( u vybraných domů )

Rozvody elektroinstalace

Kompletní příprava všech povrchů pod malby

Kompletní výmalba

Kompletace elektroinstalace - rozvaděč

Kompletace elektroinstalace - zásuvky a vypínače

Kompletní skladba SDK podhledů

Kompletní skladba podlah bez nášlapných vrstev

Obklady, dlažby, sanita

Podlahové krytiny

Interiérové dveře

Kuchyňská linka

Máte zájem o tento dům?

Vyplňte prosím krátký formulář a my se Vám co nejdříve ozveme.

Děkujeme

Mohlo by se Vám líbit

Přidat do seznamu přání Přidat do porovnávání
Dřevostavba ILO 143G Dřevostavba ILO 143G

Dřevostavba ILO 143G

Dispozice

4+kk

Garáž

40 m2

Užitná plocha

143 m2

Typ konstrukce

dřevostavba

Cena provedení na klíč

6 499 000 Kč s DPH

Cena hrubé stavby

3 464 700 Kč s DPH

Přidat do seznamu přání Přidat do porovnávání
Dřevostavba ILO 92 Dřevostavba ILO 92

Dřevostavba ILO 92

Dispozice

4+kk

Užitná plocha

92 m2

Typ konstrukce

dřevostavba

Cena provedení na klíč

4 590 000 Kč s DPH

Cena hrubé stavby

2 456 800 Kč s DPH

Bydlení,
vyladěné přírodou

Sledujte nás

  • Facebook
  • Instagram

Kde nás najdete?

ILO DOMY s.r.o.

Varenská 3309

Moravská Ostrava 702 00

Spojte se s námi

(+420) 773 070 317

info@ilodomy.cz

Odkazy

  • KUCHYNĚ NEST
  • O nás
  • Naše domy
  • Blog
  • Reference
  • Proč si vybrat nás?
  • Dům z dronu
  • Tiny House
  • Kontakty
ARSY line - tvorba webových stránek a eshopů

Oblíbené produkty

Přihlaste se

Pro přidání produktu do seznamu oblíbených je nutné se přihlásit nebo registrovat do e-shopu.

Registrovat se Přihlásit se

Poslat odkaz známému

Odesláním formuláře souhlasíte se zásadami ochrany osobních údajů.

Dotaz k produktu - Zděný dům ILO 101

Odesláním formuláře souhlasíte se zásadami ochrany osobních údajů.

Hledám relevantní výsledky...

Upozornění