NAVŠTIVTE NÁŠ VZOROVÝ DŮM V SHOWROOMU
NAVŠTIVTE NÁŠ VZOROVÝ DŮM V SHOWROOMU

Retail Park Ostrava - Varenská 3309

Těšíme se na vás!

Bydlení,
vyladěné přírodou
  • Facebook
  • Instagram
  • O nás
  • Naše domy
  • Blog
  • Reference
0   Porovnávání 0   Oblíbené
  • O nás
  • Naše domy
  • Blog
  • Reference
  • Proč si vybrat nás?
  • Dům z dronu
  • Tiny House
  • Kontakty

Zděný dům ILO 154G

  • Fotogalerie
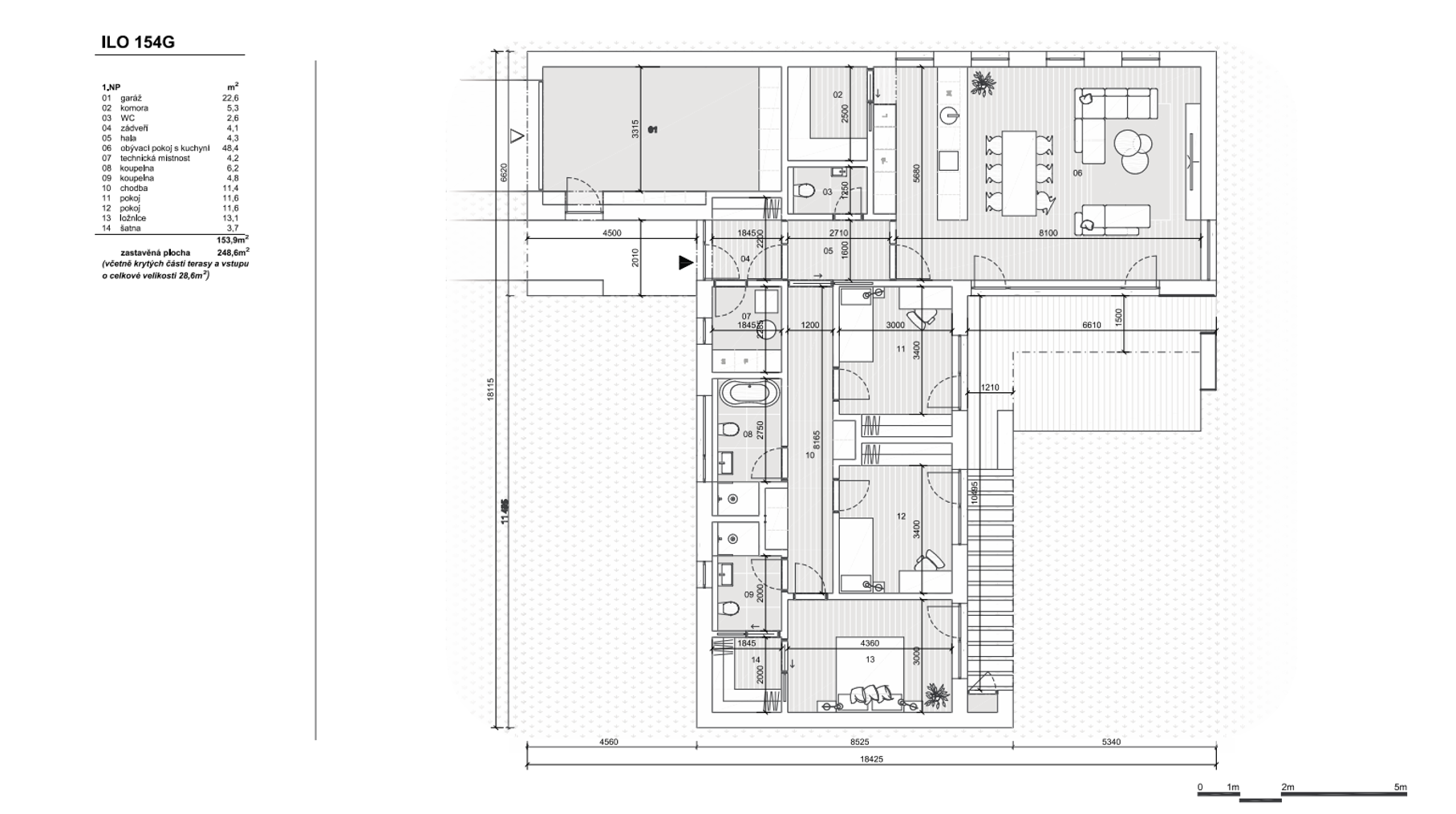
  • Půdorys
  • Interiér
  • Rozsah dodávky
Přidat do seznamu přání Přidat do porovnávání
Mám zájem o ILO 154G
Zděný dům ILO 154G

Zděný dům ILO 154G Kód: ILO 154G

  • Domů
  • Zděné domy
  • Zděný dům ILO 154G
Kontaktujte nás

Cena provedení na klíč

7 449 000 Kč s DPH

Cena provedení hrubé stavby

4 407 200 Kč s DPH

Mám zájem o ILO 154G

Luxusní bydlení ve spojení se zahradou

Barevnostní varianty:

Dům s půdorysem ve tvaru písmene L a velkorysým pojetím se snaží nabídnout maximální komfort, soukromí a propojení se zahradou. Soukromé křídlo nabízí všechny ložnice s přímým vstupem do zahrady. Společenská část se otevírá do exteriéru ve všech svých částech. Propojení interiéru s okolím je řešeno skrz různě velké a částečně kryté prostory. Vzniká tak plynulý přechod mezi domem a zahradou. Materiálové řešení kombinuje klasickou a strukturovanou omítku, zapuštěné části domu jsou obloženy dřevěným obkladem nebo silikonovou omítkou v dekoru dřeva. Prostor teras je dále modelován volně stojícími kamennými zdmi, které zároveň plní nosnou funkci. Alternativní verze domu ILO 142 doplněná o garáž a zmenšená o pracovnu.

Užitná plocha

154 m2

Typ konstrukce

zděná stavba

Zastavěná plocha

250 m2

Rozměry domu

18,115 x 18,425 m

Typ domu

Bungalov

Dispozice

4+kk

Fotogalerie

Zděný dům ILO 154G
Zděný dům ILO 154G
Zděný dům ILO 154G
Zděný dům ILO 154G
Zděný dům ILO 154G
+5
Zděný dům ILO 154G
Zděný dům ILO 154G
Zděný dům ILO 154G
Zděný dům ILO 154G
Zděný dům ILO 154G
Zděný dům ILO 154G
Zděný dům ILO 154G
Zděný dům ILO 154G
Zděný dům ILO 154G
Zděný dům ILO 154G

Interiér

Zděný dům ILO 154G
Zděný dům ILO 154G
Zděný dům ILO 154G

01 Dřevostavba na klíč

Pro ty, kteří se nechtějí o nic starat a mít vše zajištěno od jednoho dodavatele.

02 Dřevostavba hrubá stavba

Pro ty, kteří si vnitřní design domu chtějí dokončit dle svých představ.

Rozsah dodávky

01 Zděná stavba na klíč

Pro ty, kteří se nechtějí o nic starat a mít vše zajištěno od jednoho dodavatele.

02 Zděná stavba - hrubá stavba

Pro ty, kteří si vnitřní design domu chtějí dokončit dle svých představ.

Kompletní konstrukční systém ILO

Základová deska

Krovy, vazníky nebo nosníky

Kompletní střešní krytina vč. doplňků a odvodnění střechy

Tepelné čerpadlo

Fasádní systém

Vnitřní rozvody vody a odpadů

Rozvody podlahového topení

Vchodové dveře + okna + garážová vrata

Střešní okna ( u vybraných domů )

Rozvody elektroinstalace

Kompletní příprava všech povrchů pod malby

Kompletní výmalba

Kompletace elektroinstalace - rozvaděč

Kompletace elektroinstalace - zásuvky a vypínače

Kompletní skladba SDK podhledů

Kompletní skladba podlah bez nášlapných vrstev

Obklady, dlažby, sanita

Podlahové krytiny

Interiérové dveře

Kuchyňská linka

Máte zájem o tento dům?

Vyplňte prosím krátký formulář a my se Vám co nejdříve ozveme.

Děkujeme

Bydlení,
vyladěné přírodou

Sledujte nás

  • Facebook
  • Instagram

Kde nás najdete?

ILO DOMY s.r.o.

Varenská 3309

Moravská Ostrava 702 00

Spojte se s námi

(+420) 773 070 317

info@ilodomy.cz

Odkazy

  • KUCHYNĚ NEST
  • O nás
  • Naše domy
  • Blog
  • Reference
  • Proč si vybrat nás?
  • Dům z dronu
  • Tiny House
  • Kontakty
ARSY line - tvorba webových stránek a eshopů

Oblíbené produkty

Přihlaste se

Pro přidání produktu do seznamu oblíbených je nutné se přihlásit nebo registrovat do e-shopu.

Registrovat se Přihlásit se

Poslat odkaz známému

Odesláním formuláře souhlasíte se zásadami ochrany osobních údajů.

Dotaz k produktu - Zděný dům ILO 154G

Odesláním formuláře souhlasíte se zásadami ochrany osobních údajů.

Hledám relevantní výsledky...

Upozornění