NAVŠTIVTE NÁŠ VZOROVÝ DŮM V SHOWROOMU
NAVŠTIVTE NÁŠ VZOROVÝ DŮM V SHOWROOMU

Retail Park Ostrava - Varenská 3309

Těšíme se na vás!

Bydlení,
vyladěné přírodou
  • Facebook
  • Instagram
  • O nás
  • Naše domy
  • Blog
  • Reference
0   Porovnávání 0   Oblíbené
  • O nás
  • Naše domy
  • Blog
  • Reference
  • Proč si vybrat nás?
  • Dům z dronu
  • Tiny House
  • Kontakty

Zděný dům ILO 143GP

  • Fotogalerie
  • Půdorys
  • Interiér
  • Rozsah dodávky
Přidat do seznamu přání Přidat do porovnávání
Mám zájem o ILO 143GP
Zděný dům ILO 143GP

Zděný dům ILO 143GP Kód: ILO 143GP

  • Domů
  • Zděné domy
  • Zděný dům ILO 143GP
Kontaktujte nás

Cena provedení na klíč

6 999 000 Kč s DPH

součástí ceny je základová deska + tepelné čerpadlo

Cena provedení hrubé stavby

4 120 900 Kč s DPH

součástí ceny je základová deska

*Obě varianty jsou bez kuchyňské linky

Mám zájem o ILO 143GP

tradiční dům se sedlovou střechou a garáží

Barevnostní varianty:

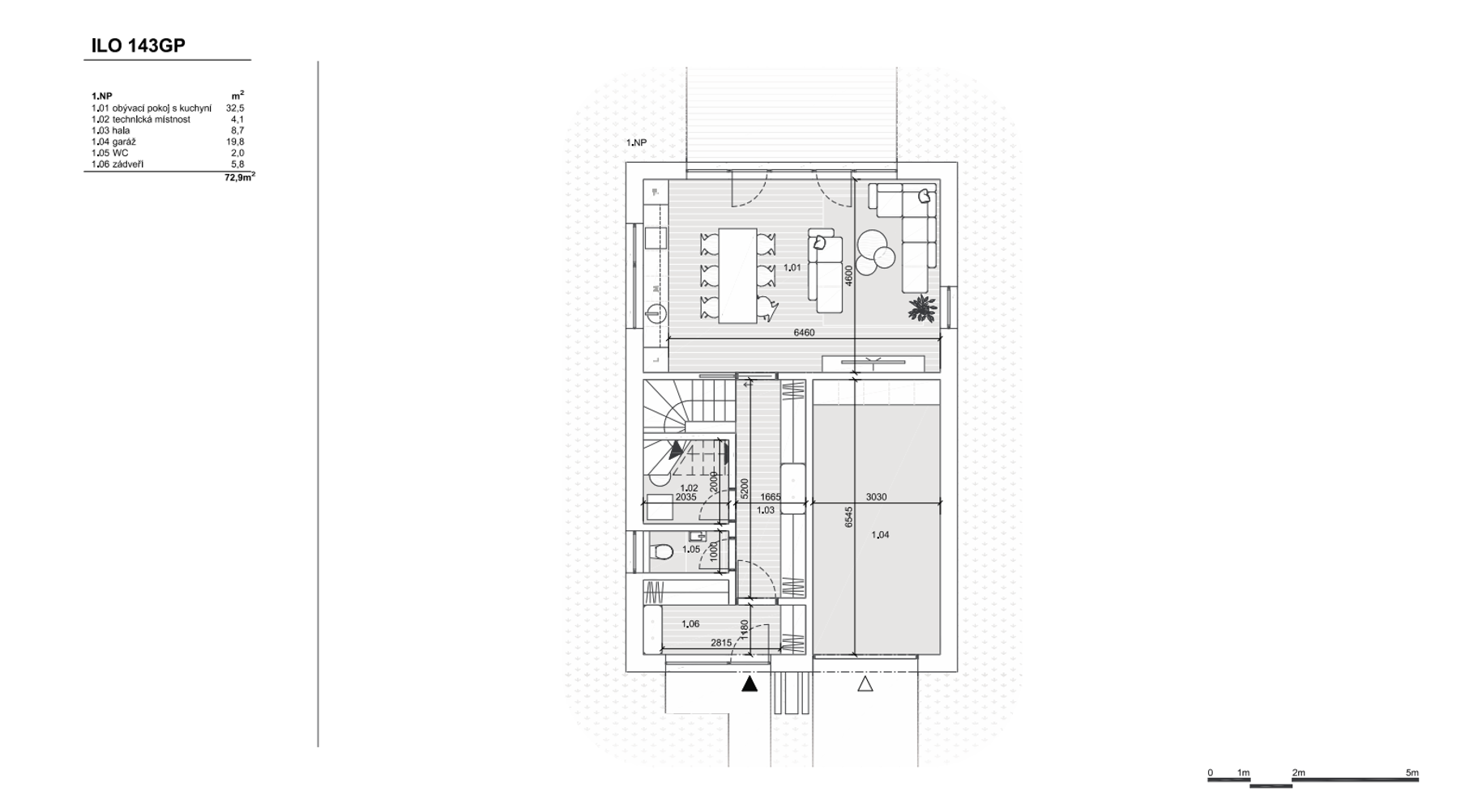
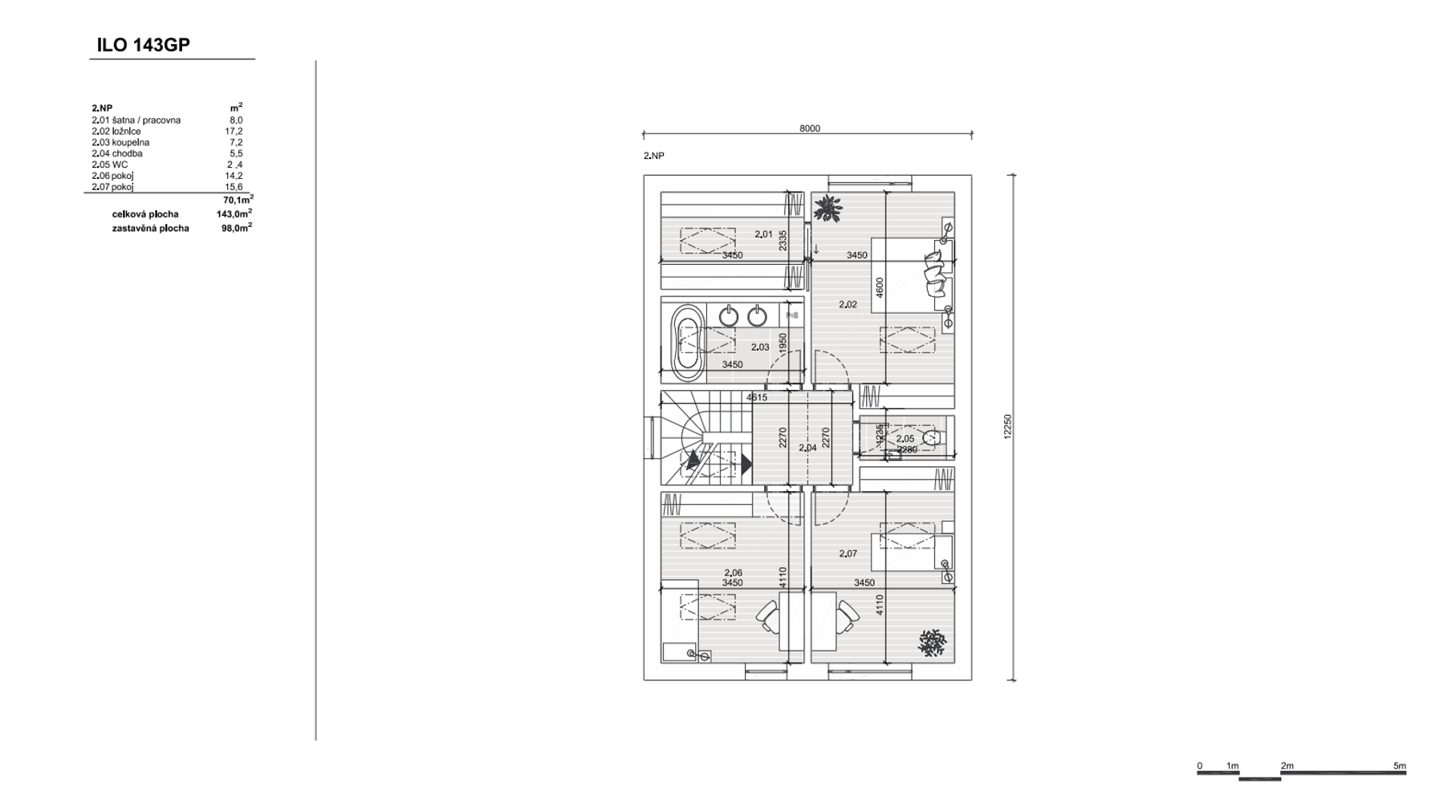
Tradiční dům se sedlovou střechou nabízí prostorný interiér na minimální zastavěné ploše a především na pozemku minimální šíře. Obytná část je situovaná do zahrady, směrem k cestě je orientováno obslužné zázemí. V patře navazují pokoje na centrální chodbu, která je otevřena do krovu pro větší vzdušnost. Ložnice je doplněna pokojem, který může sloužit jako šatna nebo pracovna. Exteriér domu kombinuje dřevěný obklad nebo silikonovou omítku v dekoru dřeva lemující přízemí a klasickou omítku. Tato barevnost navazuje na střešní krytinu a vytváří osobitý vzhled domu.

Užitná plocha

143 m2

Typ konstrukce

zděná stavba

Zastavěná plocha

98 m2

Rozměry domu

8 x 12,25 m

Typ domu

Patrový dům

Dispozice

4+kk

Garáž

20 m2

Fotogalerie

Zděný dům ILO 143GP
Zděný dům ILO 143GP
Zděný dům ILO 143GP
Zděný dům ILO 143GP
Zděný dům ILO 143GP
+5
Zděný dům ILO 143GP
Zděný dům ILO 143GP
Zděný dům ILO 143GP
Zděný dům ILO 143GP
Zděný dům ILO 143GP
Zděný dům ILO 143GP
Zděný dům ILO 143GP
Zděný dům ILO 143GP
Zděný dům ILO 143GP

1. NP

Zděný dům ILO 143GP

2. NP

Zděný dům ILO 143GP

Interiér

Zděný dům ILO 143GP
Zděný dům ILO 143GP
Zděný dům ILO 143GP

01 Dřevostavba na klíč

Pro ty, kteří se nechtějí o nic starat a mít vše zajištěno od jednoho dodavatele.

02 Dřevostavba hrubá stavba

Pro ty, kteří si vnitřní design domu chtějí dokončit dle svých představ.

Rozsah dodávky

01 Zděná stavba na klíč

Pro ty, kteří se nechtějí o nic starat a mít vše zajištěno od jednoho dodavatele.

02 Zděná stavba - hrubá stavba

Pro ty, kteří si vnitřní design domu chtějí dokončit dle svých představ.

Kompletní konstrukční systém ILO

Základová deska

Krovy, vazníky nebo nosníky

Kompletní střešní krytina vč. doplňků a odvodnění střechy

Tepelné čerpadlo

Fasádní systém

Vnitřní rozvody vody a odpadů

Rozvody podlahového topení

Vchodové dveře + okna + garážová vrata

Střešní okna ( u vybraných domů )

Rozvody elektroinstalace

Kompletní příprava všech povrchů pod malby

Kompletní výmalba

Kompletace elektroinstalace - rozvaděč

Kompletace elektroinstalace - zásuvky a vypínače

Kompletní skladba SDK podhledů

Kompletní skladba podlah bez nášlapných vrstev

Obklady, dlažby, sanita

Podlahové krytiny

Interiérové dveře

Kuchyňská linka

Máte zájem o tento dům?

Vyplňte prosím krátký formulář a my se Vám co nejdříve ozveme.

Děkujeme

Mohlo by se Vám líbit

Přidat do seznamu přání Přidat do porovnávání
Dřevostavba ILO 127 Dřevostavba ILO 127

Dřevostavba ILO 127

Dispozice

5+kk

Užitná plocha

127 m2

Typ konstrukce

dřevostavba

Cena provedení na klíč

6 099 000 Kč s DPH

Cena hrubé stavby

3 158 300 Kč s DPH

Přidat do seznamu přání Přidat do porovnávání
Dřevostavba ILO 126 Dřevostavba ILO 126

Dřevostavba ILO 126

Dispozice

4+kk

Užitná plocha

126 m2

Typ konstrukce

dřevostavba

Cena provedení na klíč

5 999 000 Kč s DPH

Cena hrubé stavby

3 155 400 Kč s DPH

Přidat do seznamu přání Přidat do porovnávání
Dřevostavba ILO 116 Dřevostavba ILO 116

Dřevostavba ILO 116

Dispozice

4+kk

Užitná plocha

116 m2

Typ konstrukce

dřevostavba

Cena provedení na klíč

5 349 000 Kč s DPH

Cena hrubé stavby

2 926 400 Kč s DPH

Bydlení,
vyladěné přírodou

Sledujte nás

  • Facebook
  • Instagram

Kde nás najdete?

ILO DOMY s.r.o.

Varenská 3309

Moravská Ostrava 702 00

Spojte se s námi

(+420) 773 070 317

info@ilodomy.cz

Odkazy

  • KUCHYNĚ NEST
  • O nás
  • Naše domy
  • Blog
  • Reference
  • Proč si vybrat nás?
  • Dům z dronu
  • Tiny House
  • Kontakty
ARSY line - tvorba webových stránek a eshopů

Oblíbené produkty

Přihlaste se

Pro přidání produktu do seznamu oblíbených je nutné se přihlásit nebo registrovat do e-shopu.

Registrovat se Přihlásit se

Poslat odkaz známému

Odesláním formuláře souhlasíte se zásadami ochrany osobních údajů.

Dotaz k produktu - Zděný dům ILO 143GP

Odesláním formuláře souhlasíte se zásadami ochrany osobních údajů.

Hledám relevantní výsledky...

Upozornění