NAVŠTIVTE NÁŠ VZOROVÝ DŮM V SHOWROOMU
NAVŠTIVTE NÁŠ VZOROVÝ DŮM V SHOWROOMU

Retail Park Ostrava - Varenská 3309

Těšíme se na vás!

Bydlení,
vyladěné přírodou
  • Facebook
  • Instagram
  • O nás
  • Naše domy
  • Blog
  • Reference
0   Porovnávání 0   Oblíbené
  • O nás
  • Naše domy
  • Blog
  • Reference
  • Proč si vybrat nás?
  • Dům z dronu
  • Tiny House
  • Kontakty

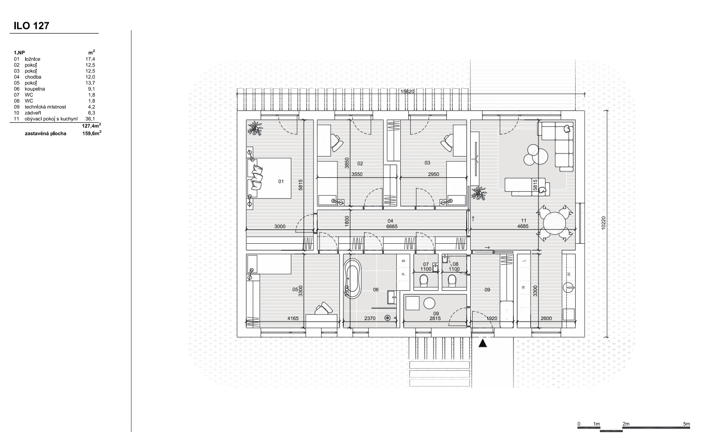
Zděný dům ILO 127

  • Fotogalerie
  • Půdorys
  • Interiér
  • Rozsah dodávky
Přidat do seznamu přání Přidat do porovnávání
Mám zájem o ILO 127
Zděný dům ILO 127

Zděný dům ILO 127 Kód: ILO 127

  • Domů
  • Zděné domy
  • Zděný dům ILO 127
Kontaktujte nás

Cena provedení na klíč

6 549 000 Kč s DPH

součástí ceny je základová deska + tepelné čerpadlo

Cena provedení hrubé stavby

3 718 100 Kč s DPH

součástí ceny je základová deska

*Obě varianty jsou bez kuchyňské linky

Mám zájem o ILO 127

prostorný a elegantní soudobý rodinný dům

Barevnostní varianty:

Dům ILO 127 nabízí tradiční dispozici přetvořenou do podoby centrální chodby, která je rozšířena a může zároveň fungovat jako šatna. Příčný obytný prostor je členěn na společenskou část a mírně oddělené kuchyňské zákoutí. Jeden boční štít je záměrně slepý, aby bylo umožněno osazení na co nejužší pozemek. V případě potřeby je možné limitovat i prosklení do druhého štítu. Exteriér domu kombinuje dřevěný obklad nebo silikonovou omítku v dekoru dřeva a běžnou omítku. Použití dřevěných latí umožňuje elegantní řešení vstupní fasády.

Užitná plocha

127 m2

Typ konstrukce

zděná stavba

Zastavěná plocha

159.6 m2

Rozměry domu

15,62 x 10,22 m

Typ domu

Bungalov

Dispozice

5+kk

Fotogalerie

Zděný dům ILO 127
Zděný dům ILO 127
Zděný dům ILO 127
Zděný dům ILO 127
Zděný dům ILO 127
+7
Zděný dům ILO 127
Zděný dům ILO 127
Zděný dům ILO 127
Zděný dům ILO 127
Zděný dům ILO 127
Zděný dům ILO 127
Zděný dům ILO 127
Zděný dům ILO 127
Zděný dům ILO 127
Zděný dům ILO 127
Zděný dům ILO 127
Zděný dům ILO 127

Interiér

Zděný dům ILO 127
Zděný dům ILO 127
Zděný dům ILO 127

01 Dřevostavba na klíč

Pro ty, kteří se nechtějí o nic starat a mít vše zajištěno od jednoho dodavatele.

02 Dřevostavba hrubá stavba

Pro ty, kteří si vnitřní design domu chtějí dokončit dle svých představ.

Rozsah dodávky

01 Zděná stavba na klíč

Pro ty, kteří se nechtějí o nic starat a mít vše zajištěno od jednoho dodavatele.

02 Zděná stavba - hrubá stavba

Pro ty, kteří si vnitřní design domu chtějí dokončit dle svých představ.

Kompletní konstrukční systém ILO

Základová deska

Krovy, vazníky nebo nosníky

Kompletní střešní krytina vč. doplňků a odvodnění střechy

Tepelné čerpadlo

Fasádní systém

Vnitřní rozvody vody a odpadů

Rozvody podlahového topení

Vchodové dveře + okna + garážová vrata

Střešní okna ( u vybraných domů )

Rozvody elektroinstalace

Kompletní příprava všech povrchů pod malby

Kompletní výmalba

Kompletace elektroinstalace - rozvaděč

Kompletace elektroinstalace - zásuvky a vypínače

Kompletní skladba SDK podhledů

Kompletní skladba podlah bez nášlapných vrstev

Obklady, dlažby, sanita

Podlahové krytiny

Interiérové dveře

Kuchyňská linka

Máte zájem o tento dům?

Vyplňte prosím krátký formulář a my se Vám co nejdříve ozveme.

Děkujeme

Mohlo by se Vám líbit

Přidat do seznamu přání Přidat do porovnávání
Dřevostavba ILO 142 Dřevostavba ILO 142

Dřevostavba ILO 142

Dispozice

5+kk

Užitná plocha

142 m2

Typ konstrukce

dřevostavba

Cena provedení na klíč

6 449 000 Kč s DPH

Cena hrubé stavby

3 401 800 Kč s DPH

Přidat do seznamu přání Přidat do porovnávání
Dřevostavba ILO 126 Dřevostavba ILO 126

Dřevostavba ILO 126

Dispozice

4+kk

Užitná plocha

126 m2

Typ konstrukce

dřevostavba

Cena provedení na klíč

5 999 000 Kč s DPH

Cena hrubé stavby

3 155 400 Kč s DPH

Přidat do seznamu přání Přidat do porovnávání
Dřevostavba ILO 143GP Dřevostavba ILO 143GP

Dřevostavba ILO 143GP

Dispozice

4+kk

Garáž

20 m2

Užitná plocha

143 m2

Typ konstrukce

dřevostavba

Cena provedení na klíč

6 499 000 Kč s DPH

Cena hrubé stavby

3 464 700 Kč s DPH

Bydlení,
vyladěné přírodou

Sledujte nás

  • Facebook
  • Instagram

Kde nás najdete?

ILO DOMY s.r.o.

Varenská 3309

Moravská Ostrava 702 00

Spojte se s námi

(+420) 773 070 317

info@ilodomy.cz

Odkazy

  • KUCHYNĚ NEST
  • O nás
  • Naše domy
  • Blog
  • Reference
  • Proč si vybrat nás?
  • Dům z dronu
  • Tiny House
  • Kontakty
ARSY line - tvorba webových stránek a eshopů

Oblíbené produkty

Přihlaste se

Pro přidání produktu do seznamu oblíbených je nutné se přihlásit nebo registrovat do e-shopu.

Registrovat se Přihlásit se

Poslat odkaz známému

Odesláním formuláře souhlasíte se zásadami ochrany osobních údajů.

Dotaz k produktu - Zděný dům ILO 127

Odesláním formuláře souhlasíte se zásadami ochrany osobních údajů.

Hledám relevantní výsledky...

Upozornění