NAVŠTIVTE NÁŠ VZOROVÝ DŮM V SHOWROOMU
NAVŠTIVTE NÁŠ VZOROVÝ DŮM V SHOWROOMU

Retail Park Ostrava - Varenská 3309

Těšíme se na vás!

Bydlení,
vyladěné přírodou
  • Facebook
  • Instagram
  • O nás
  • Naše domy
  • Blog
  • Reference
0   Porovnávání 0   Oblíbené
  • O nás
  • Naše domy
  • Blog
  • Reference
  • Proč si vybrat nás?
  • Dům z dronu
  • Tiny House
  • Kontakty

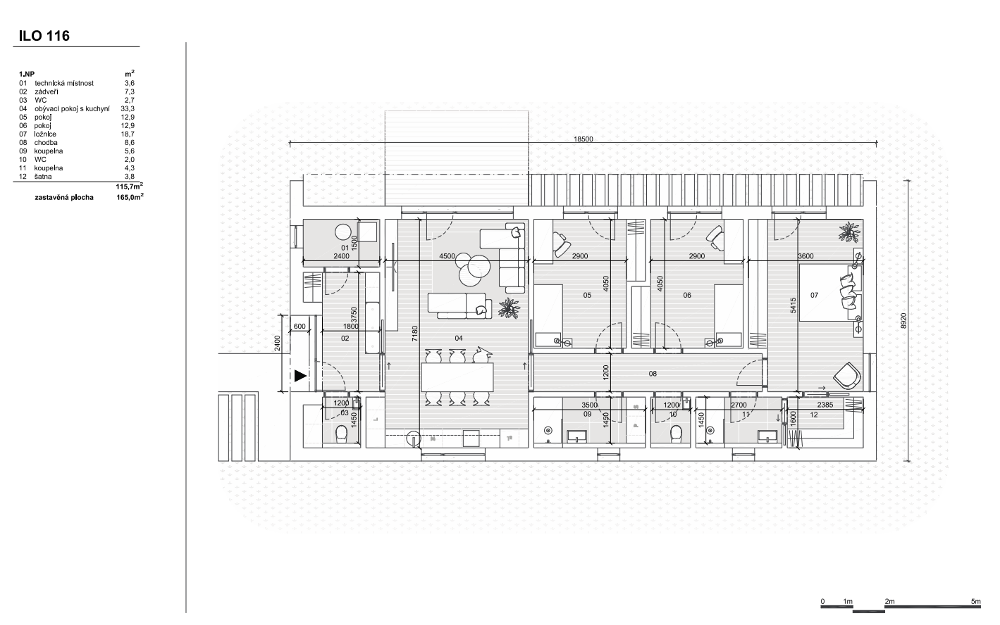
Zděný dům ILO 116

  • Fotogalerie
  • Půdorys
  • Interiér
  • Rozsah dodávky
Přidat do seznamu přání Přidat do porovnávání
Mám zájem o ILO 116
Zděný dům ILO 116

Zděný dům ILO 116 Kód: ILO 116

  • Domů
  • Zděné domy
  • Zděný dům ILO 116
Kontaktujte nás

Cena provedení na klíč

5 729 000 Kč s DPH

součástí ceny je základová deska + tepelné čerpadlo

Cena provedení hrubé stavby

3 381 800 Kč s DPH

součástí ceny je základová deska

*Obě varianty jsou bez kuchyňské linky

Mám zájem o ILO 116

dům pro úzký pozemek a velkorysé propojení se zahradou

Barevnostní varianty:

Dům s pultovou střechou přesahující stavbu směrem do zahrady a kryjící terasu je orientován směrem do hloubi pozemku. Na podélnou komunikační osu jsou postupně napojeny jednotlivé místnosti, ty pobytové mají vždy přímý kontakt se zahradou. Obslužné prostory jsou naopak situovány na druhé uzavřenější straně domu. 

Příčně orientovaný obývací pokoj od sebe pomyslně odděluje denní část dispozice od zadní soukromé části domu. Ze třech stran je dům lemován prostou omítkou, zahradní terasa je doplněná dřevěným obkladem nebo silikonovou omítkou v dekoru dřeva pro zvýšení pocitu útulnosti. Kryje jí zároveň přesah střechy, který především napomáhá proti přehřívání interiéru v letních měsících.

Užitná plocha

116 m2

Typ konstrukce

zděná stavba

Zastavěná plocha

165 m2

Rozměry domu

18,5 x 8,92 m

Typ domu

Bungalov

Dispozice

4+kk

Fotogalerie

Zděný dům ILO 116
Zděný dům ILO 116
Zděný dům ILO 116
Zděný dům ILO 116
Zděný dům ILO 116
+7
Zděný dům ILO 116
Zděný dům ILO 116
Zděný dům ILO 116
Zděný dům ILO 116
Zděný dům ILO 116
Zděný dům ILO 116
Zděný dům ILO 116
Zděný dům ILO 116
Zděný dům ILO 116
Zděný dům ILO 116
Zděný dům ILO 116
Zděný dům ILO 116

Interiér

Zděný dům ILO 116
Zděný dům ILO 116
Zděný dům ILO 116

01 Dřevostavba na klíč

Pro ty, kteří se nechtějí o nic starat a mít vše zajištěno od jednoho dodavatele.

02 Dřevostavba hrubá stavba

Pro ty, kteří si vnitřní design domu chtějí dokončit dle svých představ.

Rozsah dodávky

01 Zděná stavba na klíč

Pro ty, kteří se nechtějí o nic starat a mít vše zajištěno od jednoho dodavatele.

02 Zděná stavba - hrubá stavba

Pro ty, kteří si vnitřní design domu chtějí dokončit dle svých představ.

Kompletní konstrukční systém ILO

Základová deska

Krovy, vazníky nebo nosníky

Kompletní střešní krytina vč. doplňků a odvodnění střechy

Tepelné čerpadlo

Fasádní systém

Vnitřní rozvody vody a odpadů

Rozvody podlahového topení

Vchodové dveře + okna + garážová vrata

Střešní okna ( u vybraných domů )

Rozvody elektroinstalace

Kompletní příprava všech povrchů pod malby

Kompletní výmalba

Kompletace elektroinstalace - rozvaděč

Kompletace elektroinstalace - zásuvky a vypínače

Kompletní skladba SDK podhledů

Kompletní skladba podlah bez nášlapných vrstev

Obklady, dlažby, sanita

Podlahové krytiny

Interiérové dveře

Kuchyňská linka

Máte zájem o tento dům?

Vyplňte prosím krátký formulář a my se Vám co nejdříve ozveme.

Děkujeme

Mohlo by se Vám líbit

Přidat do seznamu přání Přidat do porovnávání
Dřevostavba ILO 143GP Dřevostavba ILO 143GP

Dřevostavba ILO 143GP

Dispozice

4+kk

Garáž

20 m2

Užitná plocha

143 m2

Typ konstrukce

dřevostavba

Cena provedení na klíč

6 499 000 Kč s DPH

Cena hrubé stavby

3 464 700 Kč s DPH

Přidat do seznamu přání Přidat do porovnávání
Dřevostavba ILO 110 Dřevostavba ILO 110

Dřevostavba ILO 110

Dispozice

5+kk

Užitná plocha

110 m2

Typ konstrukce

dřevostavba

Cena provedení na klíč

5 050 000 Kč s DPH

Cena hrubé stavby

2 809 000 Kč s DPH

Bydlení,
vyladěné přírodou

Sledujte nás

  • Facebook
  • Instagram

Kde nás najdete?

ILO DOMY s.r.o.

Varenská 3309

Moravská Ostrava 702 00

Spojte se s námi

(+420) 773 070 317

info@ilodomy.cz

Odkazy

  • KUCHYNĚ NEST
  • O nás
  • Naše domy
  • Blog
  • Reference
  • Proč si vybrat nás?
  • Dům z dronu
  • Tiny House
  • Kontakty
ARSY line - tvorba webových stránek a eshopů

Oblíbené produkty

Přihlaste se

Pro přidání produktu do seznamu oblíbených je nutné se přihlásit nebo registrovat do e-shopu.

Registrovat se Přihlásit se

Poslat odkaz známému

Odesláním formuláře souhlasíte se zásadami ochrany osobních údajů.

Dotaz k produktu - Zděný dům ILO 116

Odesláním formuláře souhlasíte se zásadami ochrany osobních údajů.

Hledám relevantní výsledky...

Upozornění