NAVŠTIVTE NÁŠ VZOROVÝ DŮM V SHOWROOMU
NAVŠTIVTE NÁŠ VZOROVÝ DŮM V SHOWROOMU

Retail Park Ostrava - Varenská 3309

Těšíme se na vás!

Bydlení,
vyladěné přírodou
  • Facebook
  • Instagram
  • O nás
  • Naše domy
  • Blog
  • Reference
0   Porovnávání 0   Oblíbené
  • O nás
  • Naše domy
  • Blog
  • Reference
  • Proč si vybrat nás?
  • Dům z dronu
  • Tiny House
  • Kontakty

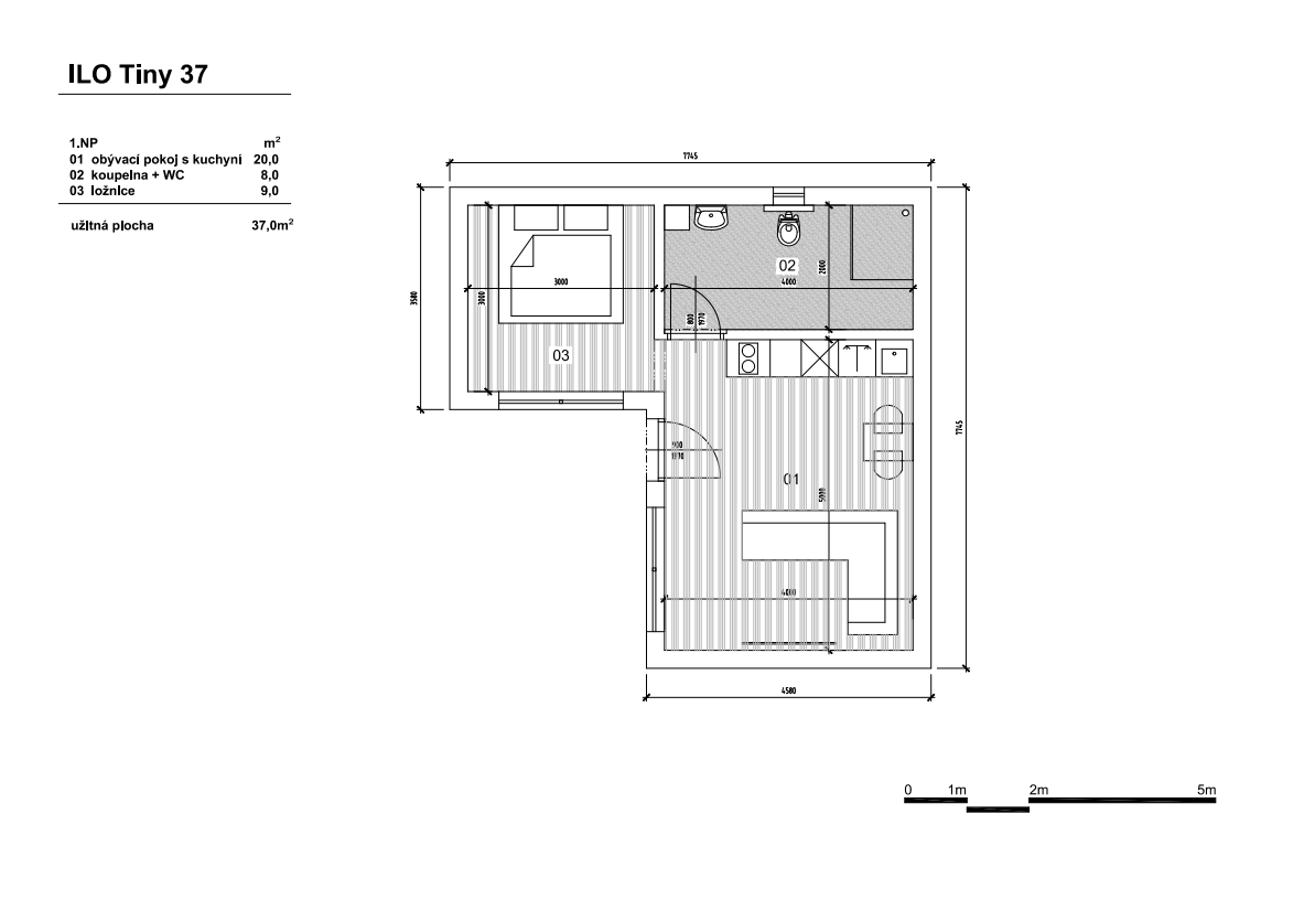
ILO TINY 37

  • Fotogalerie
  • Půdorys
  • Rozsah dodávky
Přidat do seznamu přání Přidat do porovnávání
Mám zájem o ILO TINY 37
ILO TINY 37

ILO TINY 37 Kód: ILO TINY 37

  • Domů
  • Tiny House
  • ILO TINY 37
Kontaktujte nás

Cena provedení na klíč

1 850 000 Kč s DPH

Mám zájem o ILO TINY 37

ILO Tiny 37 – Komfortní bydlení v minimalistickém stylu

ILO Tiny 37 představuje spojení moderní architektury, funkčního prostoru a přírody v dokonalé harmonii. S užitnou plochou 37 m² nabízí tento L-kový Tiny house komfortní a plnohodnotné bydlení pro jednotlivce, pár i malou rodinu. Ideální jako rekreační chata, celoroční domov nebo stylový víkendový únik z města.

Design s čistými liniemi, velkoformátovými okny a dřevěným obkladem zajišťuje nejen estetickou nadčasovost, ale i přirozené propojení s okolní krajinou.

Interiér:

Vnitřní prostor je navržen s důrazem na funkčnost – ložnice je oddělena od obývací části a kuchyňského koutu. Koupelna je vybavena sprchovým koutem, WC a umyvadlem.

Ideální využití:

  • Rekreační chata
  • Ubytování pro hosty
  • Glamping
  • Startovací bydlení
  • Kancelář v přírodě

Proč právě ILO Tiny?

  • Optimální využití každého metru čtverečního
  • Kvalitní zpracování a přírodní materiály
  • Ideální pro trvalé bydlení i rekreaci
  • Možnost individuálních úprav na přání

Fotogalerie

ILO TINY 37
ILO TINY 37
ILO TINY 37
ILO TINY 37
ILO TINY 37
+3
ILO TINY 37
ILO TINY 37
ILO TINY 37
ILO TINY 37

01 Dřevostavba na klíč

Pro ty, kteří se nechtějí o nic starat a mít vše zajištěno od jednoho dodavatele.

02 Dřevostavba hrubá stavba

Pro ty, kteří si vnitřní design domu chtějí dokončit dle svých představ.

Máte zájem o tento dům?

Vyplňte prosím krátký formulář a my se Vám co nejdříve ozveme.

Děkujeme

Bydlení,
vyladěné přírodou

Sledujte nás

  • Facebook
  • Instagram

Kde nás najdete?

ILO DOMY s.r.o.

Varenská 3309

Moravská Ostrava 702 00

Spojte se s námi

(+420) 773 070 317

info@ilodomy.cz

Odkazy

  • KUCHYNĚ NEST
  • O nás
  • Naše domy
  • Blog
  • Reference
  • Proč si vybrat nás?
  • Dům z dronu
  • Tiny House
  • Kontakty
ARSY line - tvorba webových stránek a eshopů

Oblíbené produkty

Přihlaste se

Pro přidání produktu do seznamu oblíbených je nutné se přihlásit nebo registrovat do e-shopu.

Registrovat se Přihlásit se

Poslat odkaz známému

Odesláním formuláře souhlasíte se zásadami ochrany osobních údajů.

Dotaz k produktu - ILO TINY 37

Odesláním formuláře souhlasíte se zásadami ochrany osobních údajů.

Hledám relevantní výsledky...

Upozornění